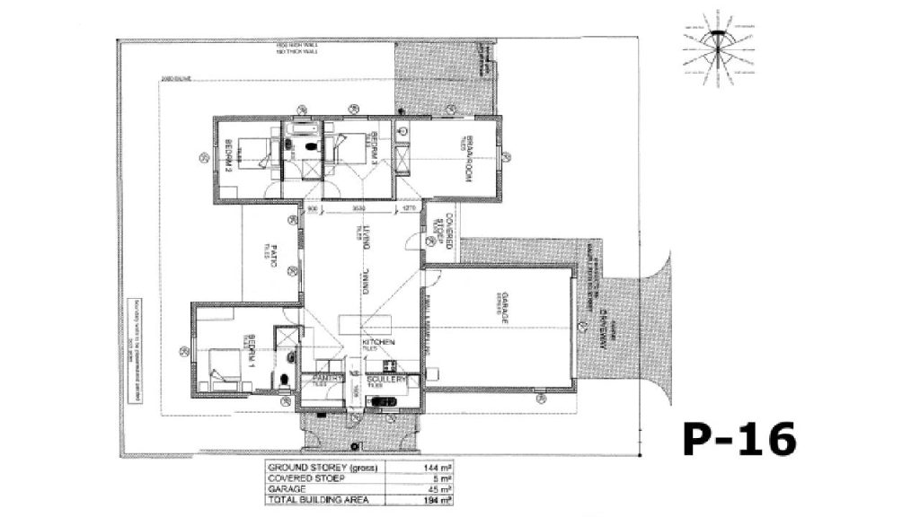
Plan #: P-16
(Prices Exclude Plot Cost)
3
2
2
194m²

Description

3 Bedroom, 2 Bathrooms, Double Garage, Braai room, Pantry & Scullery.

Features

Lounge, Dining, Kithen, Scullery, Pantry, Patio, Braai Room

Specifications

Lounge

Tiled Floor, Vaulted Ceilings, Open Plan, Patio

Dining

Tiled Floor, Vaulted Ceilings, Open Plan

Kitchen

Tiled Floor, Built-in Cupboards, Scullery, Pantry, Centre Island, Engineered stone Tops, Open Plan, Dishwasher Connection, Extractor Fan, Gas Stove (Electric Oven)

Braai Room

Tiled Floor, Open Plan, Braai, Patio, Sliding Door

Bedroom 1

Tiled Floor, Built-in Cupboards, King Bed

Bedroom 2

Tiled Floor, Built-in Cupboards, Double Bed

Bedroom 3

Tiled Floor, Built-in Cupboards, Double Bed

Bathroom 1

Tiled Floor, Main en-Suite, Shower, Toilet & Basin, Basin on Flowting Vanity

Bathroom 2

Tiled Floor, Main en-Suite, Full, Basin on Flowting Vanity

Garage

Double, Electric Door, Direct access to house

Pet Friendly

Yes

Security

Access Control, Gated Community, Guard House

Contact Us

Bond Calculator

mortgage payment calculator